10,698㎡
Stories in a Square: A Vibrant Playground for Children
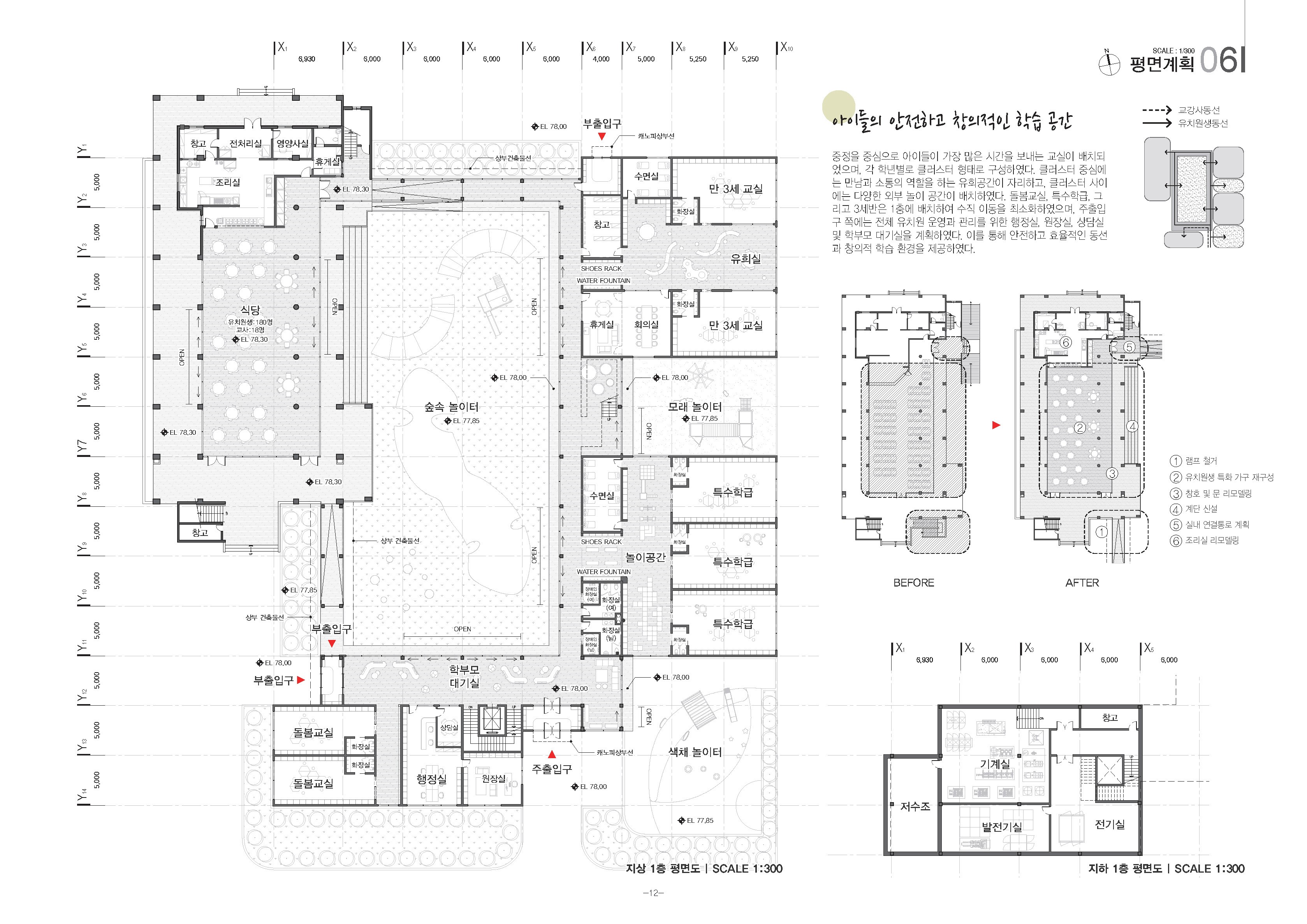
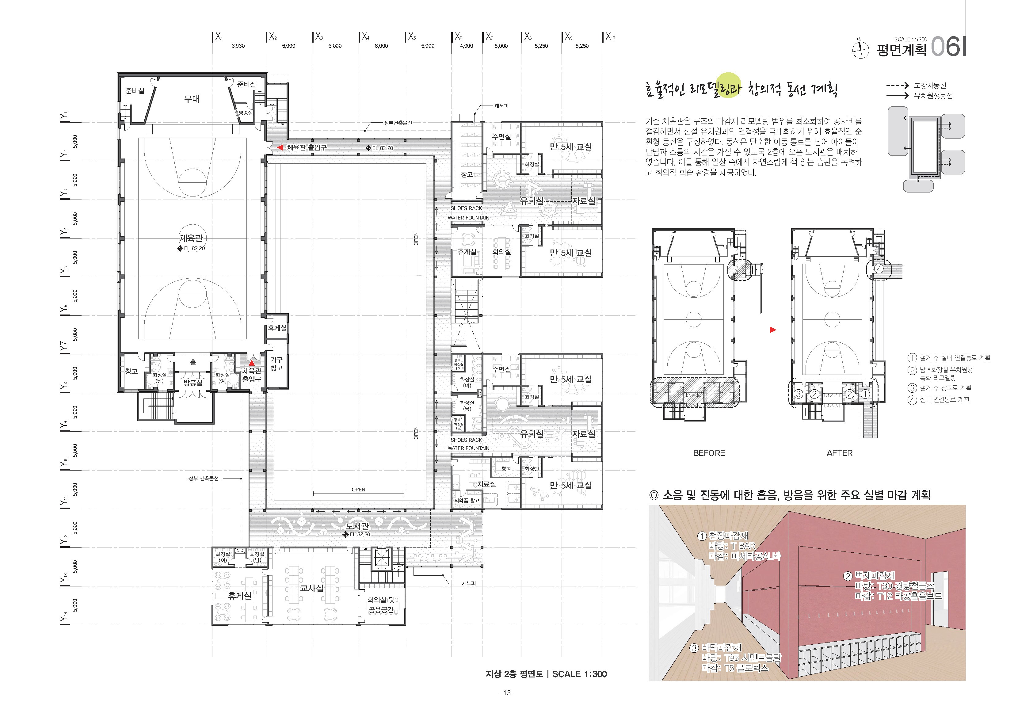
Sindong Kindergarten (Provisional) reimagines the existing elementary school site, repurposing the gym into a dining and multipurpose hall. With dedicated kindergarten spaces on the first and second floors, the design utilizes square-themed classroom clusters and facades to bring unity and energy to the campus. This "square" concept provides a safe, creative environment that functions as a joyful playground for learning.













